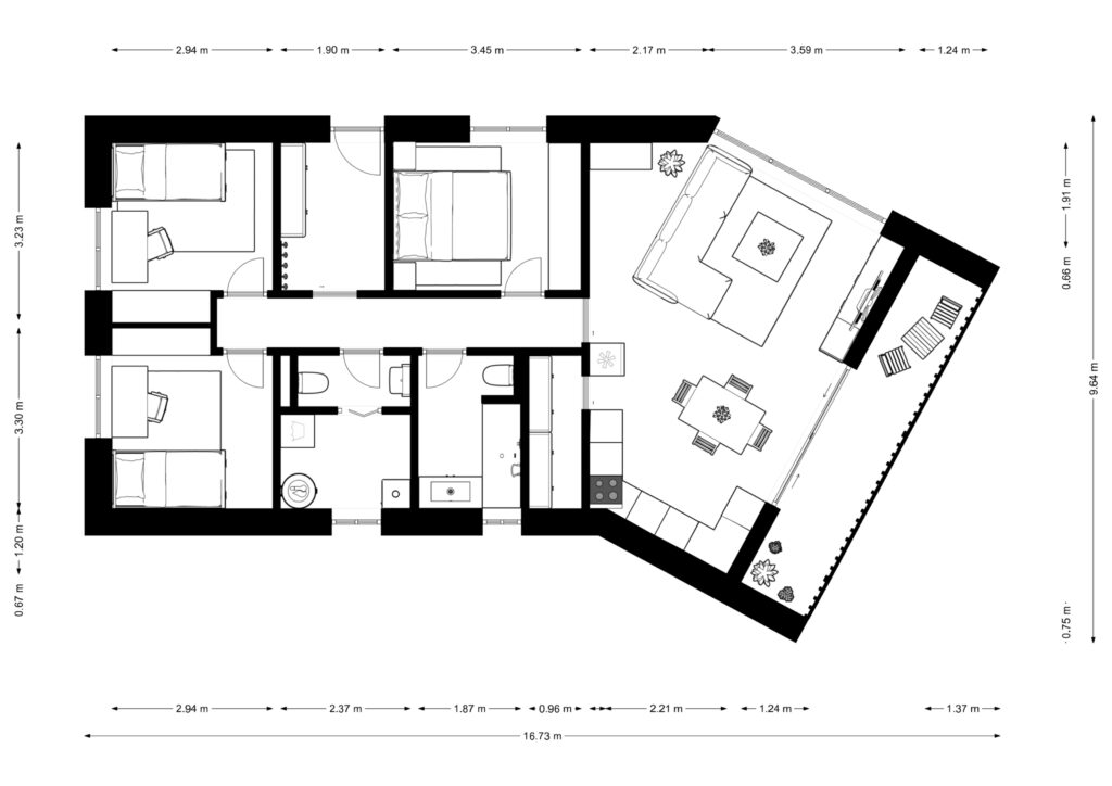
Nabízíme k prodeji moderní rodinný dům – novostavbu z roku 2024, nacházející se ve vyhledávané obci Hořiněves. Dům zaujme nejen svým současným architektonickým stylem, ale i důrazem na komfort, úspornost a kvalitní provedení. Dispozice domu je 4+kk s užitnou plochou 92 m² a zastavěnou plochou 133 m². Interiér je navržen s důrazem na vzdušnost a pohodlí – vysoké stropy dodávají prostoru jedinečný charakter. Součástí je moderní koupelna a plně vybavená vestavěná kuchyňská linka se spotřebiči, na kterou prakticky navazuje prostorná komora. Dům je vybaven moderními technologiemi zajišťujícími komfortní a úsporné bydlení: - teplovodní podlahové vytápění - venkovní žaluzie - fotovoltaické panely (FVE) na střeše (10 ks) - okna s trojskly - kvalitní silikonová omítka Velkou výhodou je možnost bezbariérového užívání a také prostorná půda, která nabízí další úložný prostor. K domu náleží velkorysý, rovinatý pozemek o velikosti 1 815 m² se vzrostlými stromy, které zajišťují dostatek soukromí a příjemnou atmosféru pro relaxaci i rodinný život. Lokalita: Hořiněves je atraktivní obec s výbornou dostupností do Hradce Králové i okolních měst. Nabízí moderní venkovské bydlení s dobrou občanskou vybaveností v dosahu – mateřská a základní škola, obchod, restaurace i sportovní vyžití. Lokalita je ideální pro rodiny hledající klid, bezpečí a zároveň rychlé spojení do města, ale také pro jednotlivce či páry, které ocení více prostoru a pohodlí. Dům je k dispozici ihned. Nemovitost lze financovat hypotečním úvěrem, s jehož vyřízením vám rádi pomůžeme. Pro více informací nebo sjednání prohlídky nás neváhejte kontaktovat.